The Chatham
The Chatham is a 1.5-story home with open living, a modern kitchen, and a spa-like owner’s suite. Includes a finished bonus room, 2-car garage, and ample storage.
The Chatham Home Plan
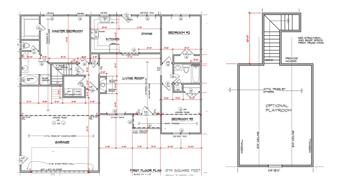
The Chatham is a beautifully designed 1.5-story home with an open floor plan that balances function and style. The main level features a spacious living room that flows seamlessly into the kitchen and dining area, creating the perfect setting for everyday living or entertaining. The kitchen is equipped with granite countertops, stainless steel appliances, and ample cabinetry.
The owner’s suite offers a relaxing retreat with a dual vanity and walk-in closet. Two additional bedrooms and a full bath complete the first floor, providing plenty of space for family or guests.
Upstairs, a finished bonus room adds versatility—ideal for a home office, playroom, or additional bedroom. Additional highlights include a large laundry room, ample storage, and an attached 2-car garage for convenience.

Available in These Communities
We’ll help you find your home
Fill out the form below, or contact us by calling (910) 123-4567 or emailing us at info@neuseriverhomes.com
"*" indicates required fields




